Обяви За нас Контакти
Дава под Наем ДЕТСКИ ЦЕНТЪР
град София, Манастирски ливади
3 000 €
5 867.49 лв.

(17.44 €, 34.11 лв./m2)
Цената е без ДДС
История на цената
Коригирана в 11:53 на 6 февруари, 2026 год.
Обявата е посетена 174 пъти.
Площ:
172 m2
Етаж:
Партер от 6
ТEЦ:
ДА

Описание на имота:


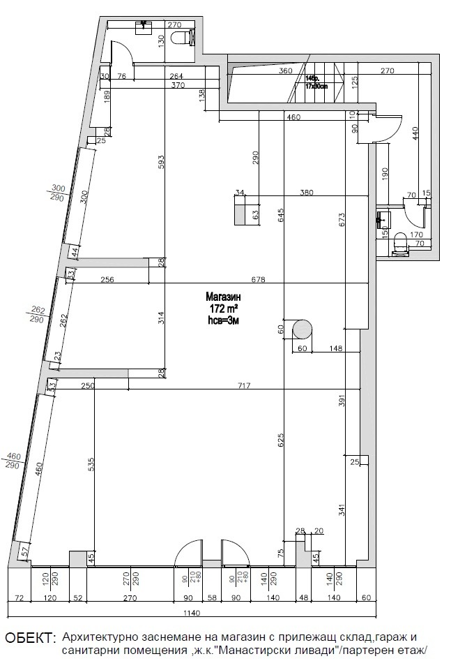
Предлагаме на Вашето внимание просторен бизнес имот, разположен в един от бързо развиващите се и предпочитани райони на София кв. Манастирски ливади, на ул. Шарл Шампо . Локацията се отличава с интензивно ново строителство, удобен достъп и добър човекопоток, което прави имота подходящ за широк спектър от бизнес и търговски дейности.
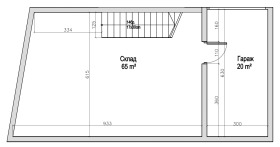
Имотът разполага с 172 кв.м застроена площ, ситуирана на ниво партер, с отлична видимост и възможност за гъвкаво вътрешно разпределение според нуждите на конкретната дейност. Към бизнес имота принадлежи помещение на ниво -1 с площ от 65 кв.м, подходящо за склад, архив или помощна зона, както и паркомясто с площ от 20 кв.м, което към момента се използва като допълнително складово пространство.
Обектът разполага с два санитарни възела, осигуряващи удобство за персонал и клиенти. Отоплението е решено посредством климатици и ТЕЦ, като не се дължи такса поддръжка.

Имотът е подходящ за детски център, представителен офис, медицински или образователен център, шоурум, търговска дейност, както и за друг тип бизнес или административна дейност. Отлична възможност за развитие на бизнес в район с висок потенциал. Удобно е да се обаждате по всяко време! Водещи брокери: Ирина Джанева - 0887 219 224 и Николай Джанев - 0888 40 80 55. Оферта номер:0766
Особености
Необзаведен
С паркомясто
Климатик
Окабеляване
Контрол на достъпа
За контакт:
0887219224
Брокер:
Ирина Джанева
0887219224, 02/9885379
Още оферти от брокера: Продава | Дава под наем | Купува | Наема
Агенция:
ДЖЕЙ И ДЖЕЙ КОРПОРЕЙШЪН ООД
02/9885379, 0887071679,0884212990
ДЖЕЙ И ДЖЕЙ КОРПОРЕЙШЪН ООД logo
Медал за прослужено време
В imot.bg от 2007 г.
jjcorporation.imot.bg
Адрес:
област София, гр. София, ул. 'Цар Асен I' 63, ет.1, ап.2
http://www.jjcorporation.eu
ИЗПРАТИ ЗАПИТВАНЕ
ИЗПРАТИ ЗАПИТВАНЕТО

Дава под Наем ДЕТСКИ ЦЕНТЪР
град София, Манастирски ливади
Обява: 2u176942535332918

3 000 €
5 867.49 лв.
История на цената
(17.44 €, 34.11 лв./m2)

Цената е без ДДС
ЗАПАЗИ ОБЯВАТА

Местоположение: град София, Манастирски ливади

Допълнителни данни за имотите в района и сравнение с други райони

Покажи

Период

и 2 месеца

* Средните цени са определени чрез медианна стойност