Обяви За нас Контакти
Дава под Наем САМОСТОЯТЕЛНА СГРАДА
област София, гр. Божурище
13 000 €
25 425.79 лв.

(3.35 €, 6.55 лв./m2)
Цената е без ДДС
История на цената
Коригирана в 12:07 на 22 декември, 2025 год.
Обявата е посетена 1132 пъти.
Площ:
3880 m2
Етаж:
Партер от 3
ТEЦ:
Лок.отопл.

Описание на имота:


Цената е без ДДС!
Предлагаме на Вашето внимание БИЗНЕС ИМОТ - сграда за търговия със склад - в един от най-бързо развиващите се промишлени райони в страната - гр. Божурище, на бул. Европейски път, Софийска област. Имотът е представителен, с вход/ изход на голям булевард и е подходящ за шоурум, склад както и различни видове търговска / складова и производствена дейност.
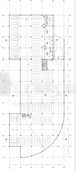
УПИ на парцела е 4 974 кв.м, със собствен локален път и с 25 външни паркоместа.
Сградата е с площ по нотариален акт от 3 880 кв.м., със собствен трафопост.
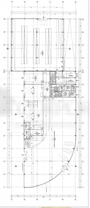
Височина на таваните на сградата:
Височина гараж: 3.50м.
Височина етаж 1: 5.50м
Височина етаж 2 - офиси: 3.20 м
Настилки в сградата:
Шоурум ет.1 - теракот
Склад ет.1 - шлайфан бетон
Офиси: теракот / шлайфан бетон
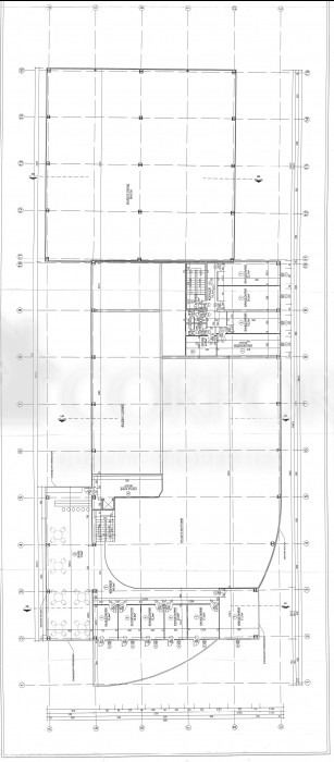
Разпределение на сградата: Ниво -1 с площ от 1770кв.м включващо подземни паркоместа, стълбище, котелно, вентилационни помещения, работно помещение; Първи етаж с площ от 1700 м2, от които Шоурум 700м2, склад 600м2 сервизни помещения, офиси, битов кът с бани и тоалетни, приемна; Втори етаж заседателна зала, кафене, офиси с обща площ на етажа около 400м2. Двата етажа са с обща площ от 2 100 кв.м и помещенията могат да бъдат пригодени според нуждите на бъдещите ползватели.
Такса поддръжка на сградата е 0.5 eur на месец.
Работим с колеги по всички наши оферти! Удобно е да се обаждате по всяко време! Водещ брокер - Ирина Джанева 0887 219 224. Оферта номер:0955.
Особености
С паркомясто
Окабеляване
Контрол на достъпа
За контакт:
0887219224
Брокер:
Ирина Джанева
0887219224, 02/9885379
Още оферти от брокера: Продава | Дава под наем | Купува | Наема
Агенция:
ДЖЕЙ И ДЖЕЙ КОРПОРЕЙШЪН ООД
02/9885379, 0887071679,0884212990
ДЖЕЙ И ДЖЕЙ КОРПОРЕЙШЪН ООД logo
Медал за прослужено време
В imot.bg от 2007 г.
jjcorporation.imot.bg
Адрес:
област София, гр. София, ул. 'Цар Асен I' 63, ет.1, ап.2
http://www.jjcorporation.eu
ИЗПРАТИ ЗАПИТВАНЕ
ИЗПРАТИ ЗАПИТВАНЕТО

Дава под Наем САМОСТОЯТЕЛНА СГРАДА
област София, гр. Божурище
Обява: 2u173019486580630

13 000 €
25 425.79 лв.
История на цената
(3.35 €, 6.55 лв./m2)

Цената е без ДДС
ЗАПАЗИ ОБЯВАТА

Местоположение: област София, гр. Божурище