Обяви За нас Контакти
Дава под Наем ОФИС
град София, Манастирски ливади
3 000 €
5 867.49 лв.

(17.44 €, 34.11 лв./m2)
Цената е без ДДС
История на цената
Коригирана в 11:53 на 6 февруари, 2026 год.
Обявата е посетена 175 пъти.
Площ:
172 m2
Етаж:
Партер от 6
ТEЦ:
ДА

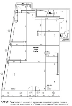
Описание на имота:


Предлагаме на Вашето внимание просторен офис, разположен в един от бързо развиващите се и предпочитани райони на София кв. Манастирски ливади, на ул. Шарл Шампо . Локацията се отличава с интензивно ново строителство, удобен достъп и добър човекопоток, което я прави изключително подходяща за развитие на различни административни и бизнес дейности.
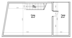
Имотът разполага с 172 кв.м застроена площ, ситуирана на ниво партер, с отлична видимост и възможност за гъвкаво вътрешно офисно разпределение open space, отделни кабинети, зали за срещи или комбинирано решение. Към офиса принадлежи складово/архивно помещение на ниво -1 с площ от 65 кв.м, както и паркомясто с площ от 20 кв.м, което към момента се използва като допълнително складово пространство.
Офисът разполага с два санитарни възела, осигуряващи комфорт за служители и посетители. Отоплението е решено посредством климатици и ТЕЦ, а не се дължи такса поддръжка.
Имотът е изключително подходящ за представителен офис, офис на IT или консултантска компания, административен център, обучителен или образователен център, както и за други бизнес дейности, изискващи добра локация и функционално пространство. Удобно е да се обаждате по всяко време! Водещи брокери: Ирина Джанева - 0887 219 224 и Николай Джанев - 0888 40 80 55. Оферта номер:0766
Особености
Необзаведен
С паркомясто
Климатик
Окабеляване
Контрол на достъпа
За контакт:
0887219224
Брокер:
Ирина Джанева
0887219224, 02/9885379
Още оферти от брокера: Продава | Дава под наем | Купува | Наема
Агенция:
ДЖЕЙ И ДЖЕЙ КОРПОРЕЙШЪН ООД
02/9885379, 0887071679,0884212990
ДЖЕЙ И ДЖЕЙ КОРПОРЕЙШЪН ООД logo
Медал за прослужено време
В imot.bg от 2007 г.
jjcorporation.imot.bg
Адрес:
област София, гр. София, ул. 'Цар Асен I' 63, ет.1, ап.2
http://www.jjcorporation.eu
ИЗПРАТИ ЗАПИТВАНЕ
ИЗПРАТИ ЗАПИТВАНЕТО

Дава под Наем ОФИС
град София, Манастирски ливади
Обява: 2h176942535760682

3 000 €
5 867.49 лв.
История на цената
(17.44 €, 34.11 лв./m2)

Цената е без ДДС
ЗАПАЗИ ОБЯВАТА

Местоположение: град София, Манастирски ливади

Допълнителни данни за имотите в района и сравнение с други райони

Покажи

Период

и 2 месеца

* Средните цени са определени чрез медианна стойност